新築一戸建て 松江市八雲町西岩坂
松江市八雲町の新築戸建!
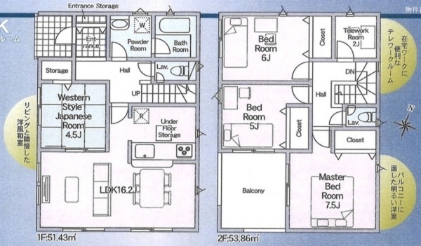
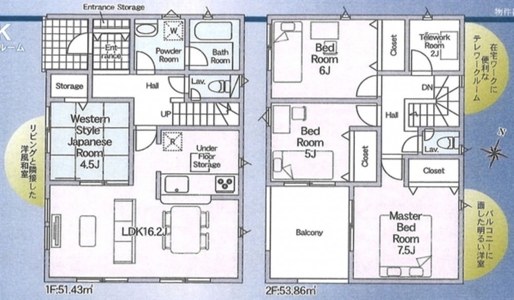
〇広々としたリビングダイニング!南向きで日当たり良好
〇洋風和室は、お子様の遊び場や来客スペースとしても便利♪
〇テレワークにも最適!集中できる環境が整っています
〇家事動線◎水廻りが一か所に集約され毎日の家事がラクに♪
〇駐車スペース3台可
その他、地震の揺れを抑える制震装置や防犯カメラ装備し、安心・安全な暮らしをサポートします!!
やくも幼保園     (約140m)
八雲中央公園     (約800m)
Aコープやくも     (約1000m)
ローソン八雲東岩坂店 (約1000m)
八雲郵便局      (約1000m)
佐貫内科医院     (約1500m)
支払例
※山陰合同銀行/借入金2,590万円、返済期間40年、金利0.800%変動金利)の場合
※審査により金利は変わる可能性があります。
物件概要
- 交通
- 
  バス停八雲車庫 まで 徒歩13分 
- 接道状況
- 西側6.0m
- 土地面積
- 実測 219.91㎡ (66.52坪)
- 建物面積
- 105.29㎡ (31.85坪)
- 築年数
- 2025年 (令和7) 8月
- 建ぺい率
- 容積率
- 土地権利
- 所有権
- 構造および階数
- 地上2階建
- 小学校区
- 八雲
- 中学校区
- 八雲
- 私道負担
- なし
- 地目
- 宅地
- 現況
- 空
- 引渡時期
- 即時
- 駐車場
- 有
- 上水道
- 公共
- 下水道
- 浄化槽個別
- ガス
- 都市計画
- 用途地域
- 定無
- 設備・条件
- システムキッチン、IHクッキングヒーター、オール電化、洗浄便座、浴室乾燥機、モニタ付インターホン
- 備考
- 取引態様
- 仲介
 
 
             
             
             
             
             
             
             
             
             
             
           
           
           
           
           
           
           
           
           
          
 
                   
               
                   
                 
                   
                  



